物流倉庫の運営効率や安全性は、設計段階で大きく左右されます。
弊社では、業務用ラック・搬送システム・内装や設備の配置計画までを含めたトータル設計を行い、作業効率の最大化とコスト削減を実現します。
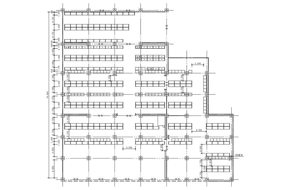
動線計画

入荷・保管・出荷の流れをスムーズにする
物流倉庫では、入荷から保管、出荷までの一連の流れが効率的に進むかどうかが大きなカギとなります。
動線計画をしっかり設計することで、無駄な移動や待機時間を削減し、作業効率を大幅に改善できます。
フォークリフトや作業員が安全かつスムーズに動ける動線をつくることが、倉庫全体の生産性を高めます。
レイアウト設計

ラックや機器の配置を最適化
倉庫の面積や天井の高さ、保管する商品の特性に合わせて、ラックや搬送機器の配置を最適化します。
固定ラック・移動ラック・ネスティングラックなどの特徴を活かしながら、限られた空間で最大の保管効率を発揮できるレイアウトを実現します。
作業員の動きやすさも考慮し、作業負担の軽減や安全性の向上につなげます。
安全性の確保

人と機械の動きを分離、災害リスク対策
物流倉庫では、フォークリフトや自動搬送機などの機械と人が同じ空間で稼働するため、事故防止のための設計が不可欠です。
人と機械の動線を分離するほか、緊急時の避難経路確保、耐震性や火災対策といったリスクマネジメントも設計段階から取り入れます。
安全性を高めることで、従業員が安心して作業できる環境を整えます。
将来拡張への柔軟性

事業拡大に対応可能な設計
物流需要や事業規模は時間とともに変化します。
そのため、倉庫設計には将来的な拡張やレイアウト変更への対応力が求められます。
弊社では、増設を見据えたラック配置や、システム導入の拡張性を考慮した設計を行い、長期的に使いやすい倉庫環境を実現します。
主な取り扱いメーカー
MANUFACTURER
アッシュエンジニアリングでは図面作成から施工まで一貫したサービスをご提供
お問い合わせ
CONTACT
物流倉庫の設備工事を、設計・プランニングから施工まで自社一貫対応。
まずはお気軽にご相談ください。





